Guide Price £575,000 - New Instruction


  • Four double bedroom semi detached house
  • Spacious accommodation over three floors
  • Built to a high specification in 2014
  • En suite to master bedroom
  • Stunning country lane setting
  • Private south facing garden
  • Within striking distance of all amenities
  • NO CHAIN!

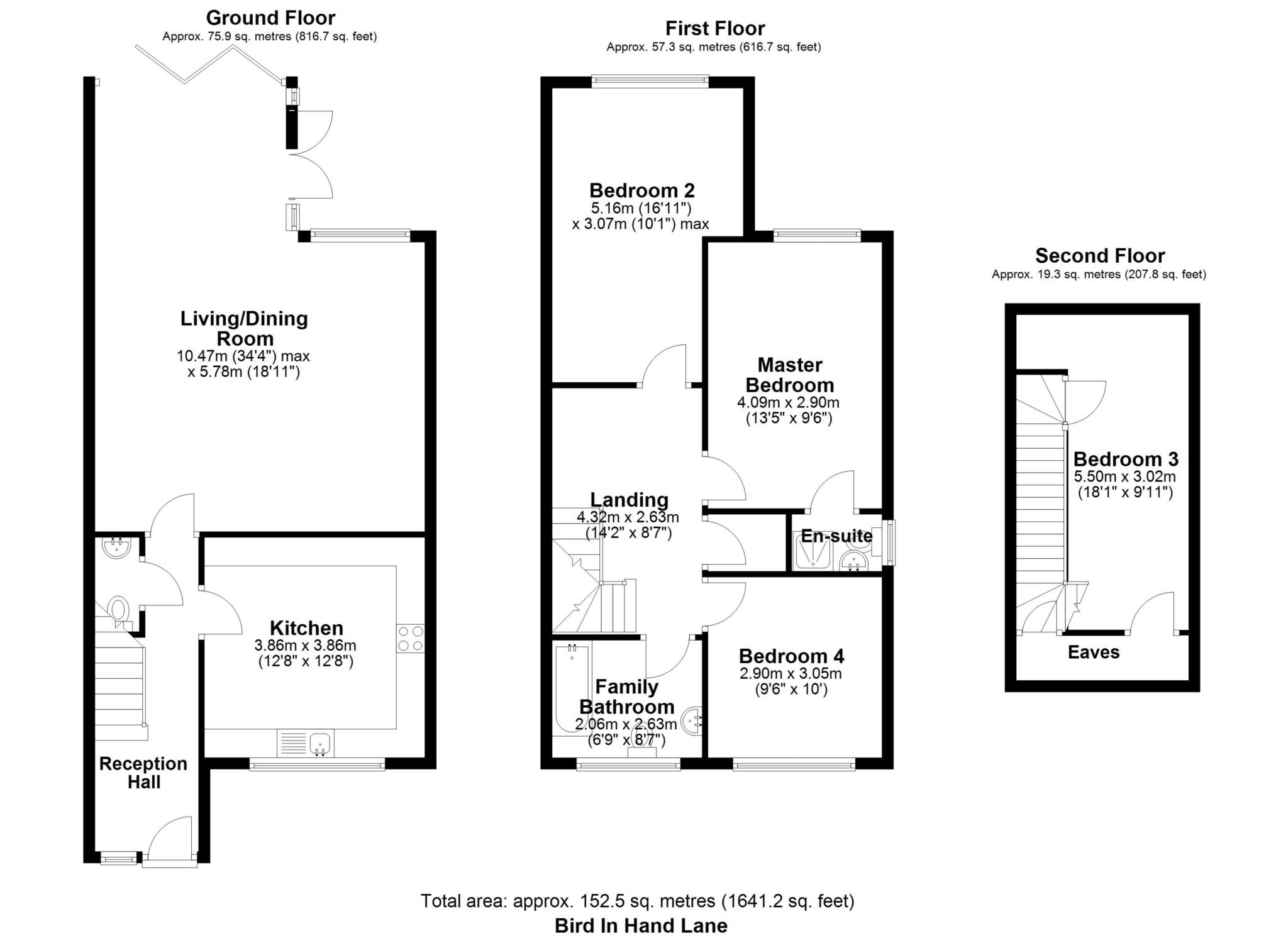
Bridges are delighted to bring to the market The Burrow, a deceptively spacious four double bedroom semi detached house with accommodation arranged over three floors and situated in a picturesque country lane setting. The property was built in 2014 to a high and exacting specification including a superb kitchen with high quality integrated appliances and quartz work surfaces. The accommodation is generously proportioned with a large reception hall leading to the cloakroom, the kitchen and a super living/dining room with bi folding doors leading to the garden. The first floor landing with a staircase rising to the second floor leads to the family bathroom, and three of the four bedrooms with the master benefiting from an en suite shower room. Bedroom four is a particular feature being unusually large. Outside, the frontage affords parking for three vehicles whilst the rear garden enjoys a sunny southerly aspect. Bird in Hand lane is a short distance from the village centre offering an excellent range of shops, schools and highly regarded GP and veterinary surgeries. Sonning Common is within striking distance of both Henley-on-Thames and Reading centres and Reading mainline railway station. Beautiful open countryside is just moments away and there is NO ONGOING CHAIN.



Council Tax
Reading Borough Council, Band F

Notice
Please note we have not tested any apparatus, fixtures, fittings, or services. Interested parties must undertake their own investigation into the working order of these items. All measurements are approximate and photographs provided for guidance only.

Floor Plan
EER Chart

The Energy-Efficiency Rating is a measure of a home's overall efficiency. The higher the rating, the more energy-efficient the home is, and the lower the fuel bills are likely to be.

Utility Supply Type
Electric Unknown
Gas Unknown
Water Unknown
Sewerage Unknown
Broadband Unknown
Telephone Unknown

Other Items Description
Heating Gas Central Heating
Garden/Outside Space Yes
Parking Yes
Garage No

Broadband Coverage Highest Available Download Speed Highest Available Upload Speed
Standard 16 Mbps 1 Mbps
Superfast 41 Mbps 8 Mbps
Ultrafast 1000 Mbps 1000 Mbps

Mobile Coverage Indoor Voice Indoor Data Outdoor Voice Outdoor Data
EE Likely Likely Enhanced Enhanced
Three Likely Likely Enhanced Enhanced
O2 Likely Likely Enhanced Enhanced
Vodafone Likely Likely Enhanced Enhanced

Broadband and Mobile coverage information supplied by Ofcom.


marker icon