Price £510,000 - New Instruction


  • Four bed link-detached house
  • Main bedroom with ensuite
  • Vast loft conversion
  • Large kitchen/diner
  • Close to glorious open countryside
  • Excellent school catchment
  • Close to local amenities
  • No onward chain!

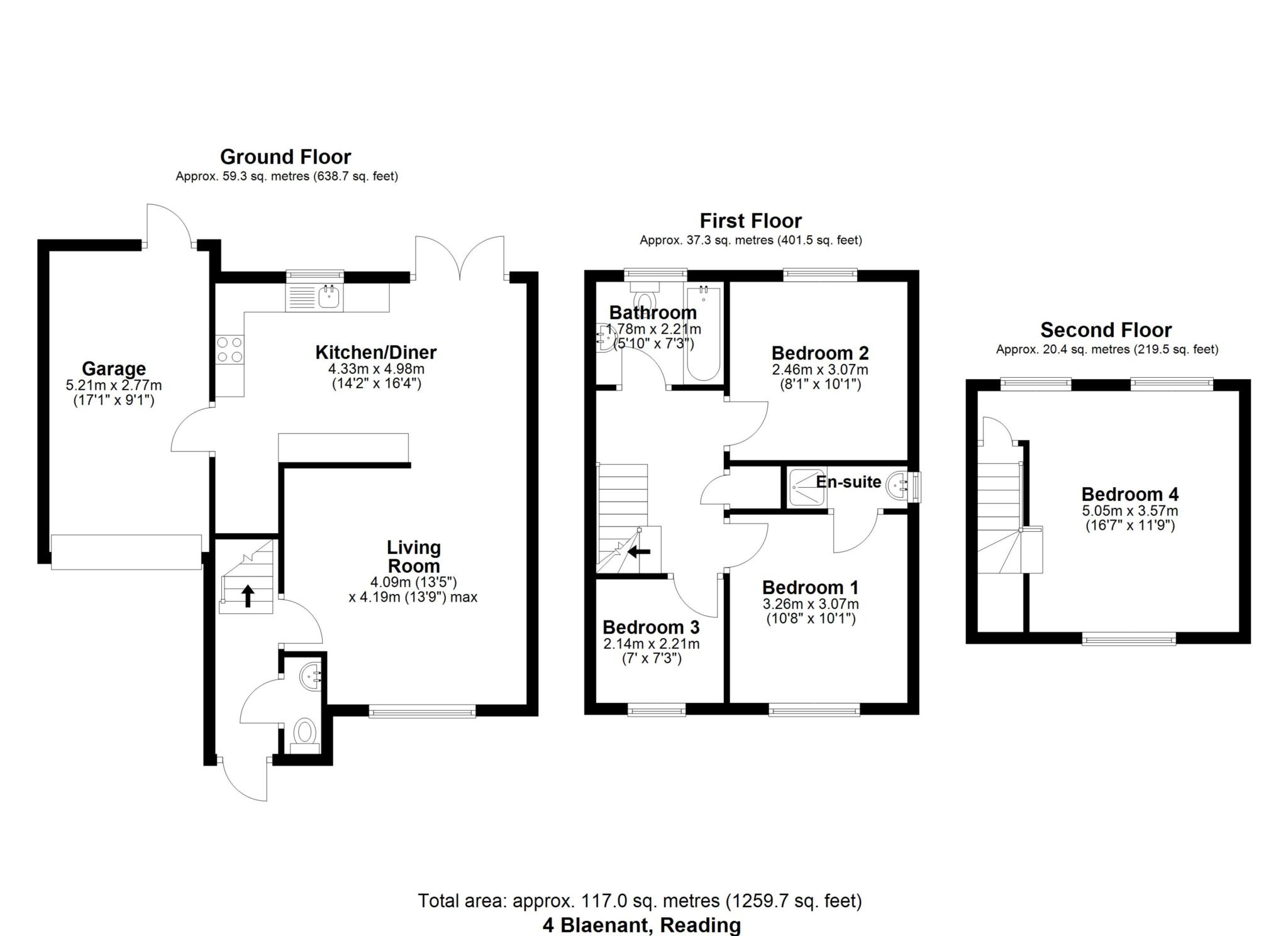
Bridges are delighted to bring to the market this four bedroomed link detached house situated in a quiet no through road a stone's throw from glorious open countryside. Presented in immaculate decorative order throughout the property benefits from a large living room which leads to the open plan kitchen which is large enough for a table and has French Doors to the garden. The kitchen has a range of floor and eye level units and integrated appliances and provides access to the integrated garage. There is a downstairs cloakroom. The first floor has three bedrooms, two doubles and a small single perfect for an office or nursery. The main bedroom on this floor benefits from a shower room ensuite. The second floor bedroom is vast and has views front and back and plenty of eaves storage. Blaenant is 50m from Bugs Bottom and is in catchment for excellent schools, primary and secondary. An early viewing is recommended by the vendors' sole agents. No onward chain!



Council Tax
Reading Borough Council, Band E

Notice
Please note we have not tested any apparatus, fixtures, fittings, or services. Interested parties must undertake their own investigation into the working order of these items. All measurements are approximate and photographs provided for guidance only.


/// onions.courier.ally is the what3words address for the best entrance. what3words has given every 3 metre square in the world a unique combination of 3 random words.

Floor Plan
EER Chart

The Energy-Efficiency Rating is a measure of a home's overall efficiency. The higher the rating, the more energy-efficient the home is, and the lower the fuel bills are likely to be.

Utility Supply Type
Electric Mains Supply
Gas Unknown
Water Mains Supply
Sewerage None
Broadband None
Telephone None

Other Items Description
Heating Not Specified
Garden/Outside Space No
Parking No
Garage No

Broadband Coverage Highest Available Download Speed Highest Available Upload Speed
Standard 4 Mbps 0.6 Mbps
Superfast 40 Mbps 8 Mbps
Ultrafast 1800 Mbps 1000 Mbps

Mobile Coverage Indoor Voice Indoor Data Outdoor Voice Outdoor Data
EE Enhanced Enhanced Enhanced Enhanced
Three Enhanced Enhanced Enhanced Enhanced
O2 Enhanced Enhanced Enhanced Enhanced
Vodafone Enhanced Enhanced Enhanced Enhanced

Broadband and Mobile coverage information supplied by Ofcom.


marker icon